︎
STEFANO CORBO
ABOUT
PROJECTS
BOOKS
PUBLICATIONS
NEWS
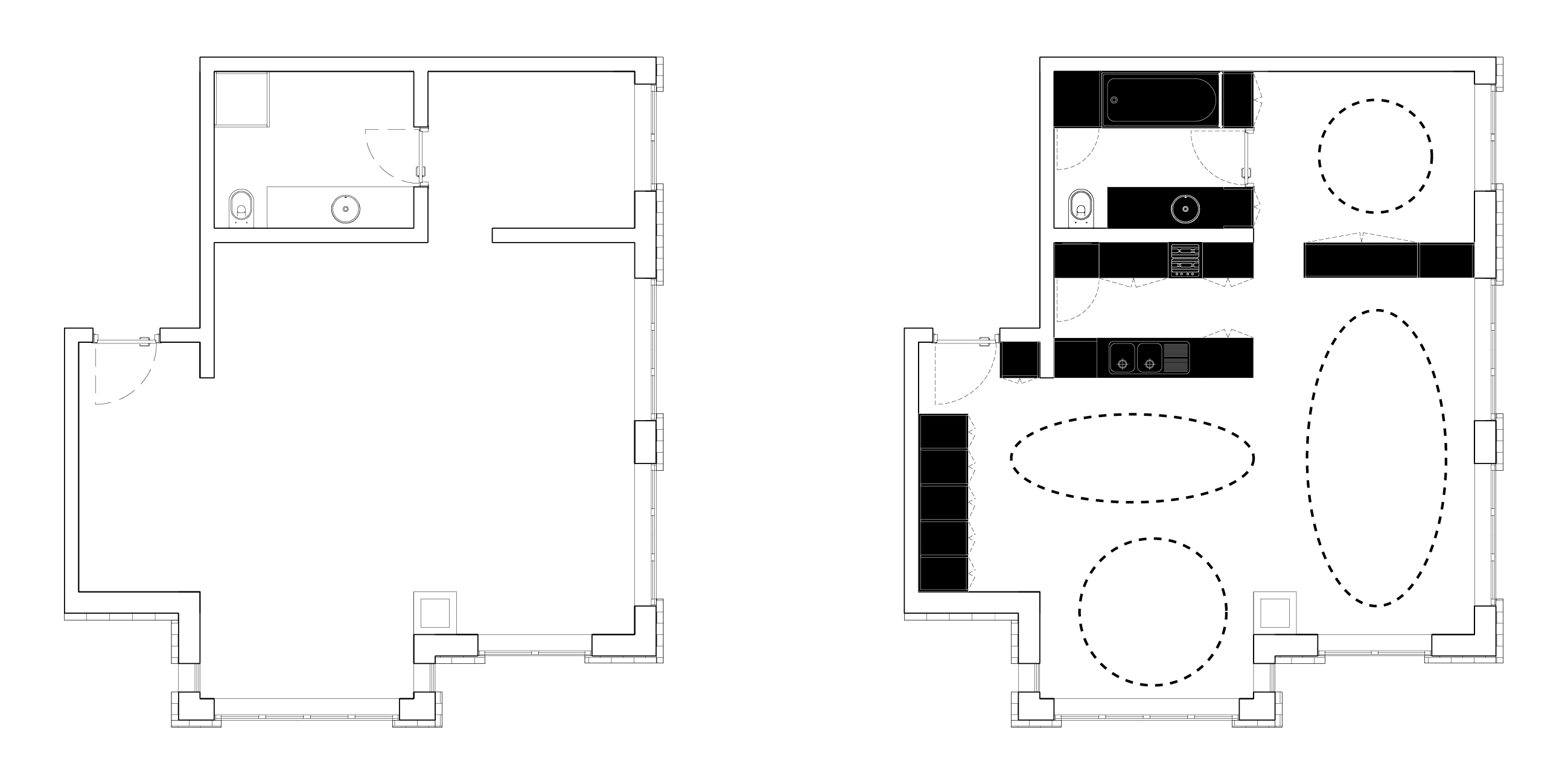
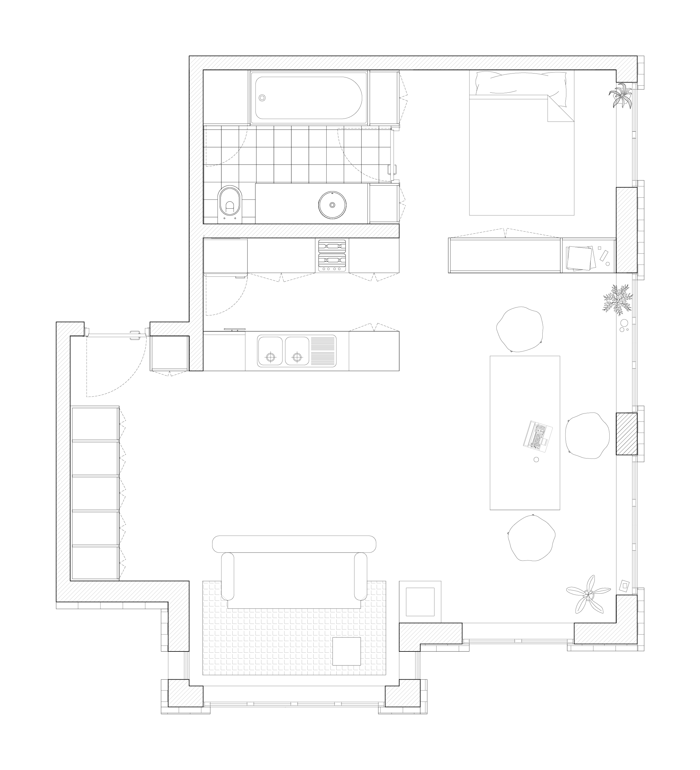
NF Apartment
• Boston | USA
• Year: 2021
• Size: 120 m2
• Project Type: Architecture
Running on Cargo